FREE INITIAL CONSULTATION WITH AN ARCHITECT

Contact
End Terrace, Crawley

Loft: Restricted Head Height

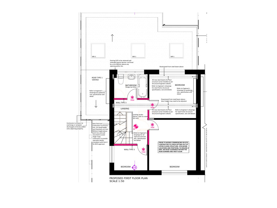
Blackstone Architects were appointed to create to two additional bedrooms to an end of terrace house with restricted head height and limited floor space.

The challenging brief also required a redesign of the first floor and extensions on the ground floor. The design included:

    • Lowering first floor ceiling to create head height in the loft.
    • Reposition and redesign of the staircase.
    • Two bedrooms in the loft with a bathroom.
    • Open plan kitchen dinner.
    • WC and home office.
    • Redesign first floor layout.
    • Large TPO tree, requiring tree reports, sensitive designs and extensive liaison with the planners.

Blackstone Architects were responsible for producing and managing both the Planning and Building Control drawings, and they also introduced the client to a trusted Structural Engineer to ensure a smooth execution of the project.

SHARE PROJECT